Mẫu nhà 3 tầng 2 mặt tiền hiện đại, đẹp được nhiều gia chủ ưa chuộng, vì ngôi nhà nằm ở vị trí thuận lợi thích hợp cho công việc kinh doanh, nhất là ở những khu vực thành phố.
- Mua bán nhà đất tại dự án Biệt thự Ngân Long, Huyện Nhà Bè
- Thiết kế biệt thự 1 tầng
- Mẫu Biệt Thự Mini: Kiến Trúc Nhà Độc Đáo Giữ Lòng Phố Thị Mộng Vân 2023-10-02T10:11:19+07:00 Biệt thự mini là xu hướng lựa chọn mới trong thiết kế biệt thự được ưa chuộng giữa thành phố sầm uất, giúp tái tạo năng lượng, tận hưởng cuộc sống của nhiều gia chủ. Không quá to như quy mô biệt thự thông thường lại không bé như loại hình nhà phố, thiết kế biệt thự mini đủ sức mang đến không gian một không gian sống thoải mái, đẳng cấp BST thiết kế biệt thự mini hiện đại & sang trọng Đất Thủ xin giới thiệu đến Quý Anh chị những thiết kế biết thự mini sở hữu kiến trúc độc đáo, vừa kết hợp yếu tố chuyên môn trong việc quy hoạch cảnh quang khu đất. Dưới đây xin giới thiệu các công trình biệt thự mini mà Đất Thủ đã thiết kế và thi công hoàn thiện trong năm 2023. Bình DươngThiết kế biệt thự mini đẹp Diện tích: 12x15m Phong cách thiết kế: Hiện đại XEM BỐ TRÍ CÔNG NĂNG >>> Bình DươngThiết kế biệt thự mini phong cach Nhật Diện tích: 8x16m, 3 phòng ngủ Phong cách thiết kế: Hiện đại XEM BỐ TRÍ CÔNG NĂNG >>> Bến CátBiệt thự mini sân vườn phong cách Địa trung hải Diện tích: 11x18m, 3 phòng ngủ Phong cách thiết kế: Địa trung hải XEM BỐ TRÍ CÔNG NĂNG >>> Vĩnh Phú – Thuận AnNhà của An – Biệt thự mini sân vườn Diện tích: 11×18m, 3 phòng ngủ Phong cách thiết kế: Địa trung hải XEM BỐ TRÍ CÔNG NĂNG >>> An Sơn – Thuận AnBiệt thự hiện đại mái Nhật Diện tích: 15m x 14m Phong cách thiết kế: Hiện đại XEM BỐ TRÍ CÔNG NĂNG >>> An Sơn – Thuận AnBiệt thự mini sân vườn hiện đại Diện tích: 9m x 9.5m, 3 phòng ngủ Phong cách thiết kế: Hiện đại XEM BỐ TRÍ CÔNG NĂNG >>> Thuận AnBiệt thự nhà vườn mái ngói Diện tích: 98m2, 4 phòng ngủ Phong cách thiết kế: Hiện đại XEM BỐ TRÍ CÔNG NĂNG >>> An Sơn – Thuận AnBiệt thự hiện đại 2 tầng có hồ bơi Diện tích: 16x10m Phong cách thiết kế: Hiện đại XEM BỐ TRÍ CÔNG NĂNG >>> Bình DươngThiết kế biệt thự hiện đại 8m Diện tích: 8×19m, 5 phòng ngủ Phong cách thiết kế: Địa trung hải XEM BỐ TRÍ CÔNG NĂNG >>> Bình DươngThiết kế biệt thự phố mini phong cách Nhật Diện tích: 13m x 20m Phong cách thiết kế: Hiện đại XEM BỐ TRÍ CÔNG NĂNG >>> Phú Lợi – Thủ Dầu MộtBiệt thự mini sân vườn kết hợp mái mở hiện đại Diện tích: 14,5m x 12m, 4 phòng ngủ Phong cách thiết kế: Hiện đại XEM BỐ TRÍ CÔNG NĂNG >>> Phú Giáo – Bình DươngNhà biệt thự mini hiện đại có sân vườn Diện tích: 8x14m Phong cách thiết kế: Hiện đại XEM BỐ TRÍ CÔNG NĂNG >>> An Sơn – Thuận AnBiệt thự hiện đại mái Nhật 2 tầng Diện tích: 16x10m Phong cách thiết kế: Hiện đại, mái Nhật XEM BỐ TRÍ CÔNG NĂNG >>> Bình DươngMẫu biệt thự hiện đại kiểu Nhật Diện tích: 10x25m Phong cách thiết kế: Hiện đại XEM BỐ TRÍ CÔNG NĂNG >>> Đất Thủ cung cấp Giải pháp thiết kế biệt thự mini Giải pháp thiết kế kiến trúc mang lại lợi ích gì? Công trình có vẻ ngoài thẩm mỹ, cá nhân hóa Thiết kế thẩm mỹ, cập nhật xu hướng. Mỗi thiết kế nhà đều dựa trên nhu cầu, mong muốn của chính khách hàng. Từng công trình đều mang dấu ấn cá nhân riêng của gia chủ.Không gian công năng tối ưu sử dụng Các giải pháp lấy năng, gió, đối lưu không khí được áp dụng vào công trình để mang đến không gian sống thoải mái và chất lượng nhất đến gia chủ.Phương án khả thi xây dựng Bản vẽ thiết kế đáp ứng tính thực tế khi thi công, giảm thiểu phát sinh chi phí do điều chỉnh các chi tiết không phù hợp khi xây dựng công trình.Ngân sách được quản lý hiệu quả Trong quá trình thiết kế, KTS sẽ tư vấn cân đối giữa nhu cầu với ngân sách của gia chủ. Đồng thời phân tích ưu/nhược điểm khi chọn các phương án. 5 Nguyên tắc thiết kế để sở hữu biệt thự mini đẹp Nguyên tắc 01: Sự tương xứng giữa thiết kế hàng rào, cổng chính và nhà Hầu hết các mẫu biệt thự mini thường thấp tầng nên khi thiết kế và xây dựng, gia chủ cần phải chú ý đến việc cân chỉnh chiều cao của cổng chính và tường rào sao cho hợp lý, đảm bảo hài hòa về tổng thể. Để giải quyết vấn đề này, kiến trúc sư thường thiết kế thêm các giàn hoa để trang trí như hoa giấy, tigon hoặc hoa hồng tại phần tường rào trước cổng để cho khối thiết kế trở nên nhẹ nhàng, uyển chuyển và mềm mại hơn. Nguyên tắc 02: Chú ý đến lối vào của một số thiết kế biệt thự mini Đối với nhiều mẫu biệt thự mini ở nông thôn thường có lối đi vào quanh co và uốn khúc để làm nổi bật không gian ngoại thất thì không nên sử dụng cách thiết kế dạng thẳng, thô cứng giống như các mẫu biệt thự mini thông thường. Để tạo nên sự gần gũi giữa lối vào và không gian biệt thự mini, tốt nhất nên sử dụng các loại vật liệu có nguồn gốc từ tự nhiên như gỗ, đá, mây, tre… Những vật liệu này sẽ giúp làm “mềm hóa” kiến trúc của ngôi biệt thự. Nguyên tắc 03: Dành riêng cho biệt thự mini có gara ô tô Đối với các khu biệt thự liền kề cần có khu vực gara ô tô thì tốt nhất nên bố trí gara tại phần song song với cửa chính, cạnh hông nhà với diện tích vừa đủ, khoảng từ 3x5m là hợp lý nhất. Ngoài ra, có thể sử dụng phần sân trước của mẫu biệt thự mini để làm nơi thư giãn, vui chơi dành cho thành viên trong gia đình với bộ bàn ghế, võng xếp, chòi hóng mát, xích đu… Nguyên tắc 04: Nên sử dụng màu sơn trung tính Màu sơn của ngoại thất trong các thiết kế biệt thự mini nói riêng và biệt thự hiện nay nói chung, chủ yếu là màu trắng hoặc những gam màu trung tính. Cách dùng màu sơn này sẽ giúp “ ăn gian” không gian diện tích, tạo độ thoáng đãng và độ sáng giúp cho người nhìn bên ngoài có cảm giác rộng rãi, thông thoáng hơn. Đối với mái ngói, nếu như sơn tường có màu nhạt thì nên dùng mái ngói đỏ. Và ngược lại, nếu mái ngói có màu tối như đen hoặc xám thì nên dùng sơn màu đậm để tạo sự hài hòa, nổi bật. Nguyên tắc 05: Chú ý thiết kế nội thất biệt thự mini Tốt hơn hết là nên bố trí không gian nội thất trong mô hình biệt thự mini theo phong cách tối giản nhất có thể, không nên sử dụng quá nhiều đồ vật hay đồ trang trí như tranh treo tường, tiểu cảnh… trong các phòng bởi chúng sẽ khiến cho không gian trở nên chật chội hơn. Video mẫu thiết kế biệt thự mini đẹp 2022 – 2023 Xem thêm nội dungTổng quan nội dung bài viết Toggle BST thiết kế biệt thự mini hiện đại & sang trọng Giải pháp thiết kế biệt thự mini5 Nguyên tắc thiết kế để sở hữu biệt thự mini đẹpVideo mẫu thiết kế biệt thự mini đẹp 2022 – 2023Những lưu ý khi thiết kế và xây biệt thự miniLời khuyên để có một căn biệt thự mini bền vững Những lưu ý khi thiết kế và xây biệt thự mini 1. Chọn phong cách thiết kế Phong cách thiết kế quyết định kiến trúc ngoại thất và phong cách nội thất ngôi nhà. Mỗi phong cách đều có ưu điểm riêng nhưng điều quan trọng nhất: nó phải là phong cách yêu thích của gia chủ. Bởi vì đây là không gian gia chủ sẽ sống trong thời gian lên đến vài chục năm, phải thực sự thoải mái, tận hưởng. Phong cách thiết kế cũng ảnh hưởng đến chi phí. Phong cách cổ điển, bán cổ điển có giá thiết kế và thi công cao hơn 20-30% do độ cầu kỳ, nhiều chi tiết hơn. 2. Thiết kế bố cục nhà Do diện tích sàn giảm xuống, nên quy hoạch bên trong nhà nhỏ cần được tính toán kỹ lưỡng sao cho khoa học. Bố cục hiệu quả. Đảm bảo rằng mỗi phòng hoặc không gian được bố cục hiệu quả và đủ chức năng, không quá lớn cũng không quá nhỏ so với nhu cầu. Không gian mở, đa năng. Khi thiết kế biệt thự mini hãy làm theo nguyên tắc chung: ít phòng hoặc không gian lớn hơn sẽ ưu việt hơn là nhiều phòng mà nhỏ. Đó là lý do thiết kế những không gian rộng, mở, đa công năng với cửa trượt hoặc cửa lớn là một sáng kiến thành công cho những ngôi nhà có diện tích nhỏ từ thời xưa đến nay. Khi gia đình cần tiếp khách hoặc cần sự riêng tư cho công việc, học tập, không gian sống có thể dễ dàng được phân chia lại. Sắp xếp một góc không gian sinh hoạt chung cho bàn máy tính hoặc bàn học tập, làm việc cũng là một gợi ý hay cho gia chủ. Thay vì phải thiết kế một phòng riêng biệt, khu vực này có thể để nối liền với không gian chính hoặc ngăn chia bằng cửa trượt. Không gian lưu thông. Khi thiết kế biệt thự nhỏ cần quan tâm đến không gian lưu thông như cầu thang, sảnh, lối vào. Nếu những khu vực này được thiết kế rộng rãi hơn, ngôi nhà trông rộng hơn. Ngược lại, thiết kế không gian này nhỏ hẹp sẽ càng làm tôn lên đặc điểm “nhỏ” của ngôi nhà mỗi khi có người di chuyển qua lại khu vực này. 3. Phối hợp ánh sáng và màu sắc Ánh sáng. Mảng tường trắng có thể lớn hơn hoặc nhỏ hơn kích thước thực tế của nó, phụ thuộc rất nhiều vào khả năng xử lý không gian của người thiết kế. Ví dụ, một căn phòng có cửa kính lớn hoặc cửa sổ mở và có ánh sáng tự nhiên sẽ tạo cảm giác rộng hơn nhiều so với căn phòng có cùng kích thước nhưng cửa sổ nhỏ và ánh sáng yếu kém. Màu tường. Những căn phòng có màu tường sáng tạo cảm giác diện tích lớn hơn những căn phòng có màu tường tối. Ngoài ra, những căn phòng bừa bộn quá nhiều đồ đạc nhìn vào sẽ thấy nhỏ hẹp hơn là căn phòng đã được bày trí gọn gàng, tối giản và có tính toán cẩn thận. 4. Chọn vật tư hoàn thiện Vật tư hoàn thiện (như sơn tường, gạch ốp lát, cửa, thiết bị điện nước…) sẽ quyết định về chất lượng và tính thẩm mỹ của công trình. Vật liệu càng cao cấp càng làm tôn lên nét đẹp sang trọng của ngôi nhà. Ví dụ như mua cửa nhôm xingfa cao cấp, cửa gỗ cao cấp thay vì hệ nhôm thông thường. 5. Chọn đồ nội thất Cân nhắc mua sắm nội thất theo bộ, thay vì mua rời rạc. Đồ nội thất mua theo bộ có lợi thế vừa vặn với nhau, phong cách và màu sắc giữa các đồ vật hài hòa tạo cảm giác không gian được đơn giản đi và rộng rãi hơn. 6. Chọn nhà thầu thiết kế thi công Biệt thự mini yêu cầu tính thẩm mỹ cao trong bản vẽ thiết kế nhà và đường nét thi công sắc sảo. Lựa chọn một đơn vị có chuyên môn tay nghề cao mới có thể đáp ứng đủ yêu cầu của gia chủ. Hoặc anh chị nên chọn đơn vị thi công trọn gói, nếu không có nhiều thời gian hoặc kinh nghiệm chuyên môn trong việc xây nhà. Lựa chọn này sẽ giúp gia chủ tiết kiệm thời gian và có được công trình chỉn chu nhất có thể. Ngoài ra, các doanh nghiệp ngay tại địa phương luôn có mức giá vật tư hợp lý, phù hợp tài chính của hầu hết gia chủ. Giúp khách hàng sẽ tiết kiệm được chi phí vận chuyển, kho bãi bảo quản… Cụ thể tại Đất Thủ, chúng tôi cung cấp các giải pháp như: Giải pháp tài chính toàn diện Với giải pháp xây nhà trọn gói của Đất Thủ, anh chị được tư vấn chi phí cho toàn bộ hành trình xây nhà. Và các giải pháp tăng giảm ngân sách hiệu quả và thông minh. Ví dụ: Tư vấn tăng giảm số lượng/diện tích các phòng để phù hợp nhu cầu sinh hoạt. Tư vấn thay đổi lựa chọn vật tư thay thế (như dùng kính hay tường bê tông…). Lập kế hoạch về chi phí liên quan như pháp lý, thi công công trình, chi phí xây cổng rào, sân vườn, hồ bơi, thang máy… KTS sẽ gợi ý cho anh chị các phương án kèm ưu/nhược điểm để có quyết định phù hợp nhất. Báo giá xây nhà biệt thự mini trọn gói minh bạch và dự trù chính xác 90 – 95%. Từ đó giảm rủi ro phát sinh chi phí về sau. Bảng vật tư được mô tả cụ thể nhãn hiệu, chủng loại, giá. Cùng với ưu thế về chi phí vận chuyển vật tư vì là đơn vị tại địa phương. Cam kết không thay đổi theo hợp đồng đã ký. Cụ thể, trong trường hợp vật tư xây thô tăng giá do mùa vụ trong thời gian thi công. Đất Thủ vẫn giữ mức chi phí như trong hợp đồng, anh chị có thể an tâm không bị phát sinh tăng chi phí. Cung cấp nhiều gói dịch vụ phù hợp tài chính gia chủ và ưu đãi cộng thêm. Đất Thủ đưa ra 3 gói vật tư hoàn thiện, anh chị thoải mái lựa chọn phù hợp với ngân sách của mình. Gói vật tư cơ bản Gói vật tư cao cấp Gói vật tư sang trọng Giải pháp về tiến độ thực hiện Đất Thủ đưa ra quy trình làm việc rõ ràng để các bộ phận làm việc chặt chẽ với nhau, không chồng chéo, tiết kiệm thời gian và bàn giao nhà đúng hạn. Việc quản lý kế hoạch xây nhà của gia chủ cũng đơn giản hóa. Cùng với đó, mỗi giai đoạn được Đất Thủ lên kế hoạch rõ ràng khối lượng công việc, tiến độ thực hiện. Anh chị sẽ dễ dàng hơn trong quá trình quản lý. Kết hợp với các kinh nghiệm xây dựng biệt thự mini sân vườn. Đất Thủ đã tổng hợp các giải pháp được trình bày chi tiết trong hợp đồng để hai bên cùng giám sát thực hiện. Song song với việc cập nhật thông tin tiến độ xuyên suốt, kết nối liên tục giữa kiến trúc sư và chủ nhà. Anh chị không phải lo lắng về tốc độ xử lý phát sinh cũng như tiến độ hoàn thành công trình. Giải pháp thiết kế tối ưu KTS Đất Thủ luôn hướng tới sự cân bằng giữa công năng – thẩm mỹ – chi phí – khả năng thi công thực tế. Cân bằng giữa không gian nhà và môi trường cảnh quan xung quanh. Tất cả yếu tố hài hòa với nhau, nhằm mang đến môi trường sống lý tưởng, thư giãn và tiện nghi. Về thẩm mỹ Mang tính cá nhân hóa: Phong cách, sở thích gia chủ được thể hiện rõ nét trong từng công trình. Chúng tôi luôn tôn trọng ý tưởng cá nhân của khách hàng, tìm giải pháp lồng ghép khéo léo vào ngôi nhà của anh chị. Mang yếu tố địa phương: Các phương án Đất Thủ đưa ra tính toán dựa trên đặc trưng thời tiết, văn hóa địa phương Bình Dương nhưng có sự cập nhật xu hướng mới từ TP.HCM. Do đó, ngôi nhà của anh chị không những sở hữu vẻ ngoài khác biệt và duy nhất mà còn bền đẹp theo thời gian. Về công năng Thiết kế phù hợp với nhiều thế hệ, có sự cân đối để tạo ra không gian sống thoải mái, an toàn và phù hợp cho cả người lớn tuổi và trẻ nhỏ. Ví dụ, phòng ngủ người lớn tuổi được ưu tiên sắp xếp ở tầng trệt hoặc lầu thấp, không gian kết nối với tự nhiên. Cầu thang được thiết kế có độ cao các bậc vừa phải, phù hợp cho trẻ em và ông bà di chuyển. Thiết kế ưu tiên lấy năng, gió tự nhiên, tạo thông thoáng cho công trình. Hạn chế tiêu thụ năng lượng điện nhiều nhất có thể. Căn nhà của chị Mai Hương Tân Uyên là một trường hợp điển hình. Ban ngày chị không cần bật đèn vì đã có ánh sáng tự nhiên. KTS cũng ưu tiên chọn giải pháp đối lưu không khí bằng giếng trời và hệ cửa kính lớn, mang luồng gió thiên nhiên vào trong nhà thay vì phải dùng điều hòa. Về khả năng thi công Lợi thế vừa là công ty kiến trúc, vừa thi công xây dựng, Đất Thủ đưa ra giải pháp thiết kế có thể thi công thực tế. Tránh tình trạng điều chỉnh bản thiết kế khi xây dựng do không phù hợp hoặc phải đập đi xây lại. Giúp chủ nhà tiết kiệm ngân sách hiệu quả. Về không gian xanh Dù nhà lớn hay nhỏ, KTS Đất Thủ cũng sắp xếp bố trí không gian xanh hợp lý. Để môi trường sống của anh chị luôn tràn đầy sức sống. Ngoài yếu tố thẩm mỹ, cây cối còn giúp thanh lọc không khí trong nhà, làm cho không gian sống trong lành hơn. Giải pháp về pháp lý Trong gói giải pháp xây nhà trọn gói, pháp lý là một trong những phần quan trọng mà Đất Thủ cung cấp đến anh chị. Vì lẽ đó, chúng tôi đầu tư và xây dựng dịch vụ toàn diện, đúng pháp luật, không phát sinh rủi ro pháp lý xây dựng. Quan trọng hơn cả, Đất Thủ có ưu thế là đơn vị địa phương, các thủ tục pháp lý được xử lý trơn tru. Bất cứ thắc mắc của anh chị về xin phép xây dựng đều được giải đáp tại bài viết Pháp lý xây dựng và hoàn công nhà Bình Dương Giải pháp thi công, bảo hành Chất lượng công trình Mỗi công trình do Đất Thủ thiết kế thi công xây dựng trọn gói đều được chăm chút từng chi tiết, đảm bảo chất lượng tốt nhất cho chủ nhà. Từ đường nét thi công sắc sảo đến xây dựng đúng bản vẽ. Tư vấn phương án móng phù hợp địa chất từng khu vực cùng với kỹ thuật chống nứt – thấm dột. Bên cạnh đó, vật tư xây thô xây dựng đảm bảo chất lượng. Khâu chọn vật tư hoàn thiện được cá nhân hóa theo từng chủ nhà. Đất Thủ cùng anh chị sẽ lựa chọn vật tư theo sở thích và suất đầu tư của khách. An toàn thi công và an toàn trong quá trình sử dụng Trong suốt quá trình thi công mẫu biệt thự mini, công trình được quản lý an toàn và hiệu quả. Hạn chế tối đa ảnh hưởng đến môi trường xung quanh (tiếng ồn, bụi bẩn). Các phần của ngôi nhà được kiểm tra kỹ lưỡng và vệ sinh sạch sẽ trước khi bàn giao. Đảm bảo an toàn trong quá trình sử dụng của gia chủ. Ngoài ra, chế độ an toàn lao động cho đội ngũ nhân công đều được Đất Thủ thực hiện nghiêm ngặt. Bảo hành Đất Thủ đồng hành cùng anh chị xuyên suốt quá trình xây nhà và cả giai đoạn sau đó. Chúng tôi thực hiện bảo hành nhanh chóng và kịp thời. Cung cấp chính sách bảo hành lên đến 5 năm cho công trình. Trong đó: 12 tháng bảo hành công trình. 24 tháng bảo hành thấm dột. 60 tháng bảo hành kết cấu. Bảo hành thiết bị, nội thất theo quy định của nhà sản xuất. Lợi thế đơn vị địa phương, Đất Thủ bảo hành công trình nhanh chóng và lên đến 5 năm. Tóm lại, giải pháp xây nhà trọn gói Bình Dương mà Đất Thủ mang đến là lựa chọn phù hợp đại đa số khách hàng. Khi gia chủ không đủ thời gian theo sát công trình hay kiến thức về kiến trúc – thi công xây dựng. Ngoài các lợi ích như tiết kiệm thời gian, công sức, quản lý chi phí hợp lý… Ưu điểm lớn nhất của giải pháp này là giúp gia chủ an tâm hoàn toàn khi nhận nhà. Hơn ai hết, Đất Thủ hiểu rõ việc xây nhà là cả một hành trình dài. Để chuẩn bị tốt hơn cho việc hiện thực hóa bản vẽ trên giấy thành công trình hiện hữu. Anh chị nên chuẩn bị kỹ 8 điều quan trọng trước khi khởi công xây dựng. Điều này giúp tiết kiệm thời gian và chi phí đáng kể. Song song đó, anh chị cũng hình dung rõ nét hơn cho tổ ấm tương lai của mình. Cùng tìm hiểu ngay bài viết 8 bước quan trọng cần chuẩn bị trước khi xây nhà Lời khuyên để có một căn biệt thự mini bền vững Đội ngũ kiến trúc sư, kỹ sư Đất Thủ luôn chú trọng kiến tạo những công trình chất lượng cho gia chủ. Từ giai đoạn lắng nghe nhu cầu gia chủ để đưa ra phương án phù hợp nhất. Đến việc tính toán, dự trù chi phí sao cho phù hợp với tình hình tài chính hiện tại. Cho đến việc chăm chút từng chi tiết trong bản vẽ thiết kế, cách bố trí không gian công năng khoa học, thẩm mỹ cao. Bên cạnh đó là sự đồng hành, tư vấn sử dụng vật liệu, kiểu dáng, màu sắc… Đồng hành cùng gia chủ trong giám sát chất lượng cũng như tiến độ xây dựng. Nhằm đáp ứng yếu tố về ngân sách, đảm bảo thẩm mỹ, độ bền công trình cũng như bắt kịp xu hướng mới hiện nay. 1. Chuẩn bị bản vẽ nhà biệt thự Đây là cơ sở quan trọng để đảm bảo thi công suôn sẻ trên thực tế. Một trong những tiêu chí tiên quyết mà gia chủ cần lưu ý chính là bản vẽ biệt thự mini phải đảm bảo khả năng thi công trên thực tế. Bản vẽ càng chi tiết càng hỗ trợ đắc lực cho đội ngũ giám sát hiện thực hóa công trình. Đồng thời, gia chủ cũng dễ dàng hình dung, theo dõi chất lượng công trình thực tế so với bản vẽ. Tham khảo: Mặt Bằng Biệt Thự Hiện Đại 2. Bố trí công năng khoa học & thẩm mỹ Không gian sinh hoạt thường nhật Dù mẫu nhà biệt thự mini hay bất cứ ngôi nhà nào cũng phải đảm bảo các khu vực sinh hoạt cơ bản. Điển hình như phòng khách, hoặc có thể kết hợp với không gian bếp để tăng tính kết nối. Các không gian riêng tư như phòng ngủ, phòng vệ sinh… Phòng khách thoáng rộng với nội thất gỗ sang trọng – nhà chị Mai Hương. Không gian cá nhân hóa, nâng cao chất lượng cuộc sống Tùy sở thích, gu thẩm mỹ của từng gia chủ mà không gian này có thể tùy biến theo từng ngôi nhà. Một căn phòng làm việc đầy cảm hứng, phòng giải trí, thư viện, hầm rượu hoặc bồn tắm nằm là những không gian nhiều anh chị nghĩ đến cho tổ ấm của mình. Hồ bơi hiện đại, ấn tượng ngay trong khuôn viên nhà cũng là hạng mục được nhiều gia chủ quan tâm. Không gian kết nối gia đình Có thể là phòng sinh hoạt chung hoặc một bộ bàn ghế mây đặt trên sân thượng. Vừa là không gian riêng tư, thư giãn, vừa kết nối thành viên trong những dịp quan trọng. Nếu diện tích sân vườn đủ lớn, thiết kế khu vực BBQ ngoài trời cũng là một gợi ý đáng cân nhắc. Không gian xanh kết nối với thiên nhiên Việc quy hoạch, bố trí cây xanh tạo nên không gian đậm chất thiên nhiên. Nếu muốn một phối cảnh vườn cây đẹp, hài hòa và thu hút thì nhất thiết phải chú ý tới vị trí đặt cây, loại cây được lựa chọn và hình dáng cây. Từng loại cây tán thấp, tán cao, cây tầm trung, cây tán tròn, cây tỏa bóng mát… cần được đặt để phù hợp. Có nhiều cách để không gian sân vườn đẹp mắt, độc đáo. Mời anh chị tìm hiểu chi tiết qua bài viết Cách thiết kế sân vườn cho ngôi nhà thêm ấn tượng. Ngoài ra có thể đan xen thêm màu sắc của hoa và các vật liệu như đá lát đường tạo lối đi, tiểu cảnh non bộ, bộ bàn ghế gỗ nhỏ xinh làm nơi thưởng thức trà đạo. Gia chủ cần lưu ý tới việc chăm sóc hồ nước, cây xanh và sân vườn. Luôn đảm bảo sự thông thoáng, sạch sẽ và gọn gàng cho không gian xanh. 3.Sử dụng vật liệu phù hợp Biệt thự vườn 1 tầng ngoài yếu tố thẩm mỹ thì phải đảm bảo chắc chắn và bền vững theo thời gian. Vì vậy vật liệu xây dựng đóng vai trò hết sức quan trọng. Nhìn chung, có thể chia vật liệu làm 2 loại: vật liệu thô (cát, đá, sắt thép…) và vật liệu mang tính thẩm mỹ, trang trí. Vật tư thô Vật liệu thô bao gồm một số hạng mục chính trong thi công xây thô, góp phần tạo nên độ bền vững cho công trình. Đơn cử như đá, cát, xi măng, sắt thép, sơn tường hoặc hóa chất chống thấm… Gia chủ nên chọn đá xanh để tăng độ rắn chắc và khả năng chịu lực nén cao. Giai đoạn dựng xà gồ gác hay xà gồ mái nên lưu ý kích thước thép từ 1,4 ly – 2 ly hoặc hơn, tùy thuộc vào tải trọng mái. Hoặc cần căn cứ vào từng khu vực trong nhà để chọn thành phần sơn, giải pháp chống thấm phù hợp. Vật liệu mang tính thẩm mỹ, trang trí Có thể sử dụng vật liệu mang đặc trưng vùng miền, địa phương. Hoặc đồ nội thất truyền thống hay hiện đại theo sở thích, ngân sách có sẵn. Đất Thủ gợi ý một số vật liệu được ưa chuộng lại có tính thẩm mỹ cao. Vật liệu gỗ Gỗ thường được ưa chuộng trong đa số các thiết kế biệt thự mini sân vườn đẹp. Bởi sự sang trọng, bề thế mà vẫn rất gần gũi. Gỗ tự nhiên luôn có giá thành cao hơn. Vì vậy, nhiều gia đình thường lựa chọn chất liệu gỗ công nghiệp. Vừa đáp ứng tính thẩm mỹ vừa có chi phí phù hợp. Vật liệu kính Kính có thể dùng cho cửa sổ, mặt tiền, những bức tường kính… Không gian biệt thự vườn 1 tầng như được “mở” ra với thiên nhiên, tạo tầm nhìn bao quát. Vật liệu thiên nhiên: đá, gạch, sỏi, mây tre đan Sử dụng đá ốp tường, lát lối đi dẫn vào nhà… Hoặc làm điểm nhấn cho bức tường quầy bar, nhà bếp… cũng là gợi ý đáng tham khảo. Vật liệu mây tre đan thường sử dụng trong những bộ bàn ghế, sofa… gợi sự thô mộc, gần gũi. Tưởng chừng như việc phân chia mặt bằng biệt thự hiện đại sẽ rất dễ nhưng cũng không hề đơn giản. Quan trọng nhất là bố trí không gian sao cho tối ưu diện tích. Vừa đảm bảo khoa học mà vẫn có tính thẩm mỹ cao. Bên cạnh đó, cần lưu ý lựa chọn vật liệu giúp công trình bền vững với thời gian. Đó là vấn đề anh chị phải tìm hiểu kỹ hoặc tìm sự tham vấn của đơn vị chuyên môn. Đây sẽ là người đồng hành xuyên suốt cùng anh chị trong hành trình xây tổ ấm tương lai. XEM BỐ TRÍ CÔNG NĂNG: Biệt Thự Mini Mái Thái – Top 10 Mẫu Tiết Kiệm Chi Phí Là một trong những công ty xây nhà trọn gói uy tín, Đất Thủ sẵn sàng hỗ trợ anh chị khi có yêu cầu. Nhấn nút gọi, nhắn zalo hoặc gửi thông tin yêu cầu vào bảng sau, chúng tôi sẽ liên hệ anh chị nhanh nhất để kịp thời giải đáp. Tư vấn miễn phí! từ Kiến trúc sư Liên hệ ngay Đất Thủ ĐẶT LỊCH HẸN Sự kiện hấp dẫn ⭐ Gói xây dựng mới ⭐ Ưu đãi thiết kế ⭐ Chìa khóa trao tay [Tổng: 0 ]
- Hồ Sơ Thiết Kế Biệt Thự
- Biệt thự 9 tầng giữa khu đất "kim cương" của đại gia Chương Tailor, riêng bể cá đã 5 tỷ
1. Ưu điểm của nhà 3 tầng 2 mặt tiền
So với những mẫu nhà biệt thự, nhà ở 1 mặt tiền khác thì những ngôi nhà 2 mặt tiền có những lợi thế nhất định về mặt diện tích xây dựng, kiến trúc xung quanh, đặc biệt là lợi thế về mặt kinh doanh.
Bạn đang xem: Gợi ý mẫu nhà 3 tầng 2 mặt tiền hiện đại, đẹp 2023
1.1 Độ thông thoáng
Những ngôi nhà 3 tầng 2 mặt tiền có lợi thế rất lớn về khả năng đón ánh sáng và gió tốt hơn so với ngôi nhà chỉ có 1 mặt tiền. Ngoài ra nhờ ít bị che khuất xung quanh nên ngôi nhà trở nên thông thoáng và mát mẻ hơn.
1.2 Thuận lợi cho việc kinh doanh
Ngôi nhà 3 tầng 2 mặt tiền nằm ở vị trí thuận lợi tiếp giáp với 2 mặt đường, thuận tiện về mặt giao thông đây là lợi thế lớn, thích hợp cho việc kinh doanh, buôn bán, hoặc cho thuê lại mặt bằng.
Ưu điểm của ngôi nhà 3 tầng 2 mặt tiền là có thể dùng tầng trệt và lầu 1 để kinh doanh hoặc cho thuê, tầng còn lại dùng để ở.
Hình thức cho thuê thì gia chủ có thể cho thuê nhà nguyên căn hoặc cho thuê từng tầng.
Xem ngay: đơn giá thiết kế nhà phố với nhiều ưu đãi trong tháng
2. Gợi ý mẫu nhà 3 tầng 2 mặt tiền hiện đại
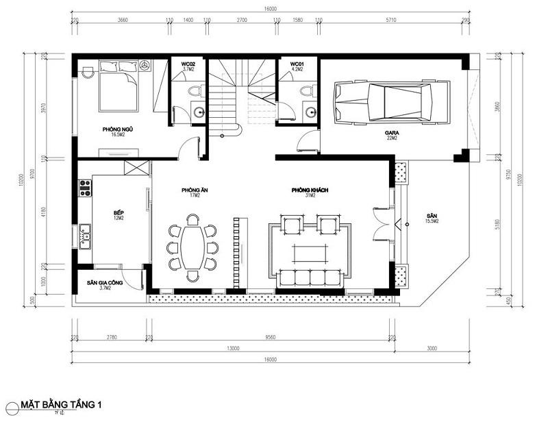
2.1 bản vẽ mặt bằng tầng 1 mẫu nhà 3 tầng 2 mặt tiền
Mặt bằng tầng 1 được thiết kế hết sức khoa học và hợp lý mang lại không gian rộng rãi cho ngôi nhà. Tạo sự thuận tiện cho những sinh hoạt hằng ngày của các thành viên trong gia đình.
Bố trí công năng bao gồm:
Phòng khách
Phòng ăn
Phòng bếp
Xem thêm : Review 5 Khu Biệt Thự Đắt Đỏ Nhất Sài Gòn Được Giới Siêu Giàu Tìm Mua
Phòng ngủ
WC chung
Gara để xe ô tô
Phòng khách được thiết kế với diện tích khá rộng rãi lên đến 31m2 nằm gần cửa thuận lợi cho việc tiếp khách. Tiếp đến là phòng ăn nằm ngay phía sau và được ngăn cách bởi vách ngăn tạo cảm giác riêng tư cho không gian sinh hoạt bên trong ngôi nhà. Nhà bếp được đặt sát với nhà ăn tạo sự thuận tiện.
Tầng trệt ngôi nhà được thiết kế 1 phòng ngủ thích hợp cho ông bà nghỉ ngơi, hạn chế leo cầu thang, ngoài ra tầng 1 còn được thiết kế 1 nhà vệ sinh dùng chung tạo sự thuận tiện trong sinh hoạt.

2.2 Bản vẽ mặt bằng tầng 2
Tầng 2 được bố trí bao gồm 2 phòng ngủ, 1 phòng sinh hoạt chung và 3 nhà vệ sinh.
Đặc biệt có 1 phòng ngủ lớn được thiết kế kèm phòng thay đồ (hay còn gọi là walk in closet), đây là xu hướng thiết kế cho những ngôi nhà có lợi thế về diện tích. Một phòng thay đồ liên thông cùng phòng ngủ cho phép gia chủ có một không gian trưng bày sản phẩm thời trang ngay tại nhà. Đây cũng là một không gian mang đến nhiều trải nghiệm tuyệt vời và góp phần nâng cao chất lượng cuộc sống của gia chủ.

2.3 Bản vẽ mặt bằng tầng 3
Tầng 3 được thiết kế 1 phòng ngủ, 1 phòng tập thể dục để gia chủ tập luyện sức khỏe mỗi ngày, phòng xông hơi dùng để thư giãn sau mỗi buổi tập
Tầng 3 còn được thiết kế 1 khoảng không nhỏ để gia chủ có thể trồng thêm cây xanh hoặc làm sân chơi cho gia đình.

2.4 Phối cảnh mặt tiền ngôi nhà 3 tầng 2 mặt tiền hiện đại

>>> Xem thêm: TOP mẫu nhà 3 tầng đẹp, hướng dẫn tính chi phí nhà 3 tầng
3. Tổng hợp một số mẫu thiết kế nhà 3 tầng 2 mặt tiền
3.1 Mẫu nhà tân cổ điển 3 tầng 2 mặt tiền


3.2 Mẫu nhà mái thái 3 tầng 2 mặt tiền




3.3 Mẫu nhà 3 tầng 2 mặt tiền hiện đại




Xem ngay: Báo giá xây nhà trọn gói 2023 được liệt kê đầy đủ và chi tiết bảng giá cho từng hạng mục thi công nhà ở, hạn chế những chi phí phát sinh thêm cho chủ đầu tư
- Share :
Nguồn: https://redonland.com
Danh mục: Biệt thự




